ഒറ്റനിലയിലെ ഒരുക്കം
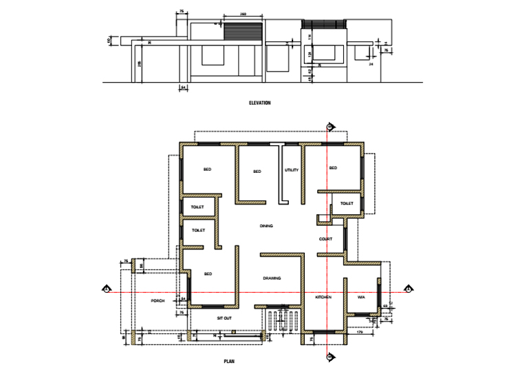
text_fieldsഒറ്റനിലയിലൊതുങ്ങി ചെറിയ ബജറ്റിലൊരു വീട്, എന്നാൽ, കാലത്തിനനുസരിച്ച സൗകര്യങ്ങൾ ഉൾപ്പെടുത്തിയിട്ടുണ്ട്. കുടുംബാംഗങ്ങള്ക്ക് ഒന്നിച്ചിരിക്കാനും ടി.വി കാണാനും വിശാലമായ ഫാമിലി ലിവിങ്ങും നാലു കിടപ്പുമുറികളും കാര്പോര്ച്ചും കോർട്ട്യാഡുമെല്ലാമുള്ള ഈ വീട് 1955 സ്ക്വയർ ഫീറ്റ്വിസ്തീർണത്തിലാണ്ഒരുക്കിയിരിക്കുന്നത്. കൻറംപററി ശൈലിയിൽ പണി തീർത്ത വീടിനെ വ്യത്യസ്തമാക്കുന്നത്സ്ക്വയർ പാറ്റേണിലുള്ള എക്സീറ്റിരിയറാണ്.

ചെലവു കുറക്കുന്നതിനും വ്യത്യസ്തമായ പാറ്റേൺ കൊണ്ടു വരുന്നതിനുമായി ഫ്ലാറ്റ് റൂഫാക്കി. ഇൻറീരിയറിൽ സൗന്ദര്യത്തോടൊപ്പം സ്ഥലം ലാഭിക്കുന്നതിലും ശ്രദ്ധിച്ചിട്ടുണ്ട്.
ഡൈനിങ്സ് പേസ്വലിയ ഹാളായാണ് നൽകിയിരിക്കുന്നത്. ഡൈനിങ്ങ്ഏരിയയിലാണ് പ്രാർഥനാ മുറിക്കായി സ്പേസ്കണ്ടെത്തിയിരിക്കുന്നത്. മുറിയായി പ്രത്യേകം വേർതിരിക്കാതെ ഒഴിഞ്ഞ കോർണറിൽ ചുവരിൽ എം.ഡി.എഫ് പാനലും സ്റ്റാൻഡും നൽകി വുഡൻ പെയിൻറടിച്ച് മനോഹരമാക്കി.

ഡൈനിങ്ങ് സ്പേസിലെ മറ്റൊരു കോർണറിൽ കോർട്ട് യാർഡ് ഒരുക്കി. ഇത്ഹാളിൽ നല്ല വെളിച്ചം നിറക്കുന്നു. കോർഡ്യാർഡിന്റെ സൈഡിൽ ചുവരു വരുന്ന ഭാഗത്ത്ജനലിനു പകരം പർഗോള ഡിസൈൻ നൽകിയത് ചെലവു കുറക്കുന്നതിനും വെളിച്ചം അകത്തേക്ക് കടത്തുന്നതിനും സഹായിച്ചു.
ലിവിങ് സ്പേസിൽ ഇൻറീരിയർ ഭംഗിക്ക്വേണ്ടി ക്യൂരിയോസിന്പകരം നിഷേ സ്പേസുകളാണ് നൽകിയത്. സീറ്റിങ് ഒരുക്കിയതിന്എതിർവശത്തെചുവരിൽ ടെക്സ്ച്ചർ പെയിൻറ് നൽകി ടി.വി സ്പേസാക്കി മാറ്റി

വെട്ടുകല്ലാണ് നിര്മാണിനുപയോഗിച്ചത്. സിറ്റൗട്ടില് ഗ്രാനൈറ്റും ബാക്കിയിടങ്ങളില് വിട്രിഫൈഡ് ടൈലും വിരിച്ചു. അടുക്കളയിൽ സൺഷേഡുകൾ അകത്തേക്കുള്ള റാക്കുകളാക്കി മാറ്റി. കബോർഡുകൾ എഎം.ഡി.എഫിലാണ്ചെയ്തത്. 30 ലക്ഷം രൂപ ചെലവിലാണ് വീട് പൂർത്തിയാക്കിയത്.
ഇടുക്കിയിലെ നെടുംങ്കണ്ടത്തെ ഹൈറേഞ്ച്പ്ലോട്ടിലാണ് വീട് നിർമ്മിച്ചത്. ടെറസിൽ നിന്നും നോക്കിയാൽ രാമക്കൽമേടിന്റെ മനോഹര ദൃശ്യങ്ങൾ കാണുന്ന തരത്തിലുള്ള പ്ലോട്ടിന്ഇണങ്ങുന്ന വിധത്തിലും ഭൂമിയുടെ ഘടനക്ക്ആഘാതമില്ലാത്ത വിധത്തിലുമാണ് നിർമാണം പൂർത്തിയാക്കിയത്.
plan

Architect: Faizal , Greenlife engineering solutions
Client :Jojo Nedukandam
Style: Contemporary
Area:1955 sqft
Sitout
Drawing
Dining
Courtyard
4 bed room with 2 Attached
Common Toilet
Wash Area
Kitchen
Work area
Porch
Don't miss the exclusive news, Stay updated
Subscribe to our Newsletter
By subscribing you agree to our Terms & Conditions.
