പരിമിതിയില്ലാത്ത സൗന്ദര്യം
text_fields സൗന്ദര്യവും ആഢ്യത്വവും ഉള്ള ഒരു വീട് ഏതൊരു വ്യക്തിയുടെയും സ്വപ്നമാണ്. പലപ്പോഴും സ്ഥലത്തിന്്റെ പരിമിതികള് കൊണ്ട് അത്തരം സ്വപ്നങ്ങളില് വിട്ടുവീഴ്ചകള് ചെയ്യേണ്ടി വരുന്നവരുണ്ട്. സ്ഥലപരിമിതിയെ വൈദഗ്ദ്ധ്യമുള്ള ഒരു ഡിസൈനറുടെ ഭാവനയെ കൂട്ടുപിടിച്ചാല് ഇത്തരം വിഷയങ്ങളെല്ലാം എളുപ്പത്തില് മറികടക്കാം.
13 മീറ്റര് മാത്രം വീതിയുള്ള കൃത്യമായ ആകൃതി ഇല്ലാത്ത നീളന് സ്ഥലം, ഒത്ത നടുവിലായി വെള്ളം വറ്റാത്ത ഒരു കിണര്, ഈ പ്ളോട്ടില് തങ്ങളുടെ സ്വപ്ന ഭവനം ഉയരണമെന്ന ആവശ്യമായി എത്തിയ ക്ളയന്റിനെ സന്തോഷത്തോടെ സ്വീകരിക്കുകയാണ് ആര്ക്കിടെക്റ്റ് ചെയ്തത്. ഏതൊരു ഡിസൈനര്ക്കും വെല്ലുവിളി ഉയര്ത്തുന്ന പ്ളോട്ടില് ഡിസൈനിംഗ് പൂര്ത്തിയായപ്പോള് ലഭിച്ചത് 3023 ചതുരശ്ര അടി വിസ്തൃതിയുള്ള അടിപൊളി വീട്.
കോഴിക്കോട് ഡോക്ടര് മുഹമ്മദ് അഷ്റഫ് എന്ന ക്ളയിന്റിനു വേണ്ടി ഗ്രീന് ലൈഫ് എഞ്ചിനീയറിംഗ് സൊല്യൂഷന്സിലെ ഫൈസല് മജീദ് ഡിസൈന് ചെയ്ത വീടിന്റെ വിശേഷങ്ങളും പ്ളാനുമാണ് ‘ഗൃഹം’ പരിചയപ്പെടുത്തുന്നത്.
മോഡേണ് ശൈലിയിലാണ് വീടിന്റെ പുറംകാഴ്ച ഒരുക്കിയത്. എന്നാല് മിനിമലിസ്റ്റ് ശൈലിയില് അകത്തളം കൂടി ഒരുങ്ങിയതോടെ വീട്ടുകാരുടെ മാത്രമല്ല ഡിസൈനറുടെയും സ്വപ്നസാക്ഷാത്കാരമായി മാറി. രണ്ടു നിലകളിലായി അഞ്ചു കിടപ്പുമുറികളാണ് സജീകരിച്ചിരിക്കുന്നത്.

1898 ചതുരശ്ര അടി വിസ്തൃതിയുള്ള ഒന്നാം നിലയില് പോര്ച്, ഡോക്ടറുടെ കണ്സള്ട്ടേഷന് റൂം, കണ്സള്ട്ടേഷന് റൂമിന്്റെ വശത്തേക്കും വീടിന്റെ പ്രധാന മുഖത്തേക്കുമായി രണ്ട് സിറ്റ് ഒൗട്ട്, ലിവിംഗ്, ഡൈനിങ്ങ്, ബാത്ത്റൂം അറ്റാച്ച് ചെയ്ത രണ്ടു കിടപ്പുമുറികള്, നടുമുറ്റം , അടുക്കള, വര്ക്ക് ഏരിയ, സ്റ്റോര് റൂം, യൂട്ടിലിറ്റി എന്നിവ ഉള്ക്കൊള്ളിച്ചിരിക്കുന്നു. പ്ളോട്ടിലുണ്ടായിരുന്ന കിണര് രണ്ടു സിറ്റ് ഒൗട്ടുകള്ക്കിടയിലുള്ള സ്പേസിലായാണ് വരുന്നത്. കിണര് ഒഴിവാക്കാതെയാണ് പ്ളോട്ട് ഒരുക്കിയെടുത്തത്.

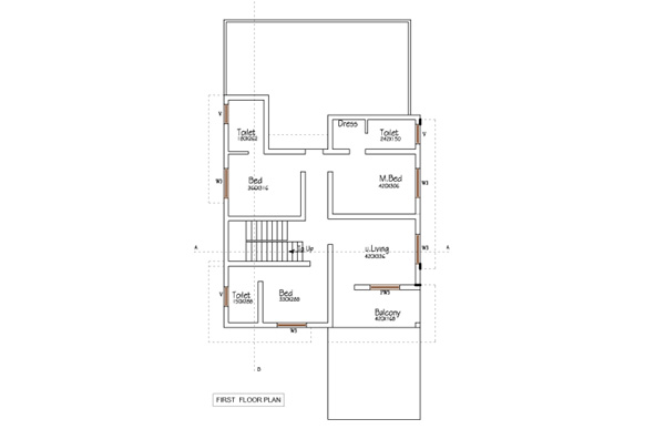
1125 ച.അടിയാണ് ഒന്നാം നിലയുടെ വിസ്തീര്ണം.അപ്പര് ലിവിംഗ്, ബാത്ത് അറ്റാച്ച് ചെയ്ത മൂന്നു കിടപ്പുമുറികള്, ബാല്ക്കണി എന്നിവയാണ് ഒന്നാം നിലയില് സജീകരിച്ചത്. വീട്ടുകാരുടെ അഭിരുചിയോട് നൂറുശതമാനം കൂറു പുലര്ത്തുന്നതില് ഡിസൈനര് വിജയം നേടിയതാണ് വീടിന് പൂര്ണത നല്കിയത്.
FAIZAL MAJEED
ARCHITECT
GREEN LIFE ENGINEERING SOLUTIONS
PALAKKAD
Don't miss the exclusive news, Stay updated
Subscribe to our Newsletter
By subscribing you agree to our Terms & Conditions.
