ഓപണ്ഹൗസ്
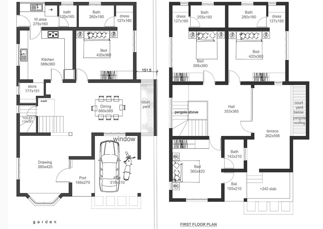
text_fieldsപകല് സമയത്ത് ലൈറ്റിടാതെ തന്നെ സ്വാഭാവിക വെളിച്ചം നിറയുന്ന വീട്, അതും ചുരുങ്ങിയ സ്ഥലത്ത് ഒതുക്കണം എന്നിങ്ങനെ ആവശ്യങ്ങളുമായി മുന്നിലത്തെിയവര്ക്ക് വേണ്ടി ആര്ക്കിടെക്റ്റ് ബിജു ബാലന് രൂപകല്ന ചെയ്ത് ഒരു ഓപണ് ഹൗസ് പ്ളാനാണ്. പരമാവധി സ്ഥലം ഉപയോഗപ്പെടുത്തിയ രൂപകല്പനയാണ് വീടിന്റെ പ്രത്യേകത.
2400 ചതുരശ്രയടി വിസ്തീര്ണത്തില് രണ്ടു നിലകളിലായി രൂപകല്പന ചെയ്ത വീട്ടില് നാല് കിടപ്പുമുറികളാണ് ഉള്ളത്. വീട് ആറു സെന്റ് സ്ഥാലത്താണ് പണിതിരിക്കുന്നത്. ഇന്്റീരിയറില് സ്ഥലം പാഴാക്കാതിരിക്കാന് ഡിസൈനര് പ്രത്യേകം ശ്രദ്ധിച്ചിട്ടുണ്ട്. സ്റ്റെയര്കേസിനടിയില് ടോയ്ലറ്റും സ്റ്റോര് റൂമും നല്കിയിരിക്കുന്നു. പകല് ലൈറ്റിടാതെ തന്നെ അകത്തളത്തിലേക്ക് സൂര്യപ്രകാശം ലഭിക്കുന്ന സ്വാഭാവിക ലൈറ്റിങ്ങും വെന്റിലേഷനുമാണ് മറ്റൊരു പ്രത്യേകത. ഡൈനിങ് സ്പേസിലേക്ക് നടുമുറ്റം നല്കിയിരിക്കുന്നു.
സിറ്റ് ഒൗട്ട്, ലിവിങ്, ഡ്രോയിങ്, കിച്ചണ്, വര്ക്ക് ഏരിയ, കോമണ് ബാത്ത് റൂം എന്നിവയും ബാത്ത്റൂം അറ്റാച്ച് ചെയ്ത ഒരു കിടപ്പുമുറിയും താഴത്തെ നിലയില് ഉള്പ്പെടുത്തിയിട്ടുണ്ട്.ഡൈനിങ് സ്പേസില് നിന്നുമാണ് സ്റ്റെയര് നല്കിയിരിക്കുന്നത്.
ഒന്നാം നിലയില് ഹാള്, ബാത്ത് റൂം അറ്റാച്ച് ചെയ്ത മൂന്നു കിടപ്പുമുറികള് എന്നിവയും ഓപ്പണ് ടെറസും ഒരുക്കിയിരിക്കുന്നു. പര്ഗോള റൂഫിങ് ചെയ്ത നടുമുറ്റമാണ് ഒന്നാംനിലയുടെ പ്രത്യേകത. വീടിന്റെ മുന് ഭാഗത്തുവരുന്ന മുറിയോട് ചേര്ന്ന് ബാല്ക്കണി സ്പേസിനും സ്ഥലം കണ്ടത്തെിയിട്ടുണ്ട്.
വീടിന്െറ ചില ഭാഗങ്ങളില് സിമന്റ് പ്ളാസ്റ്റര് ചെയ്തിട്ടില്ലാത്തത് വീടിനെ ആകര്ഷമാക്കുന്നു.

ഉടമ:
ഷഹാന ഷംസുദ്ദീന്,
എരഞ്ഞിപ്പാലം,
കോഴിക്കോട്.
വിസ്തീര്ണം:
2400 ചതുരശ്ര അടി
ചെലവ്: 48 ലക്ഷം
സ്ഥലം: ആറ് സെന്റ്
രൂപകല്പന
ബിജു ബാലന്
Don't miss the exclusive news, Stay updated
Subscribe to our Newsletter
By subscribing you agree to our Terms & Conditions.
